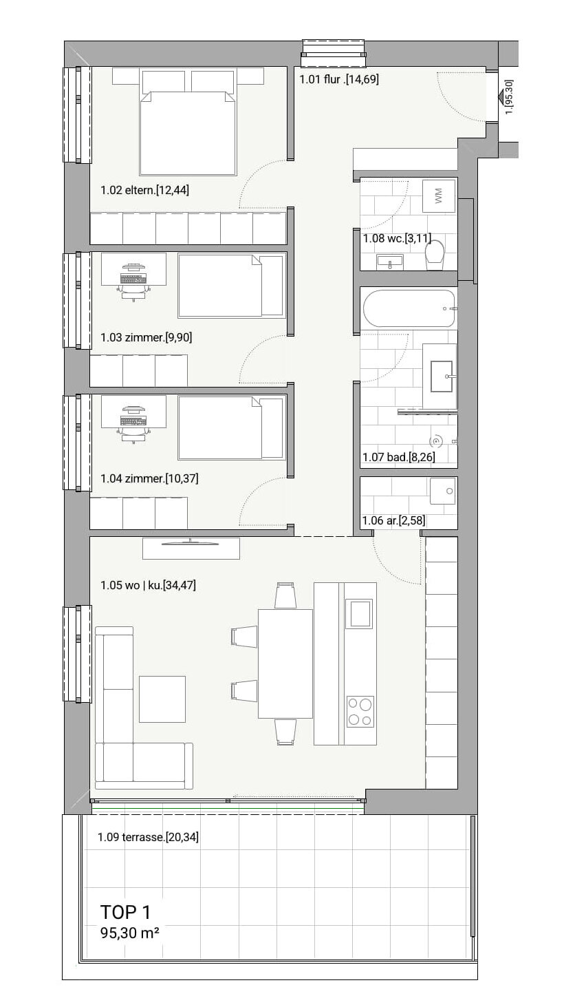
Diese 4-Zimmer-Wohnung bietet viel Platz zum Leben und Wohlfühlen. Der Wohn-/Essbereich mit fast 35 m² und Zugang zum sonnigen Balkon lädt zum Verweilen ein. Drei Schlafzimmer, Bad, WC und Abstellraum bieten Raum für Familie, Homeoffice oder Gäste. Helle Räume, moderne Ausstattung und die ruhige Lage im 2. Obergeschoss machen diese Wohnung zu einem echten Wohlfühlort.
Top 1
Großzügig und familienfreundlich
Highlights
- 4 Zimmer
- 95,30m2
- offener Wohn-/Essbereich
- großzügiger Balkon
- Lift und Tiefgarage
- Bezug ab Juli 2026
